Nytt huvudkontor åt försäkringsbolaget Codan . C.F. Møller

Nytt huvudkontor åt försäkringsbolaget Codan

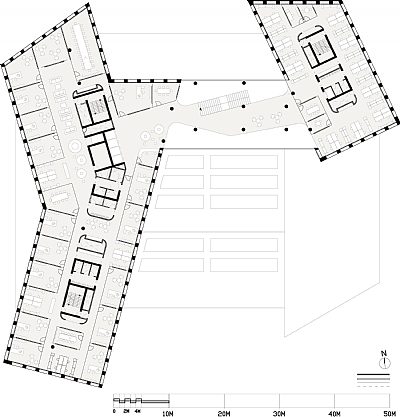
Det nya huvudkontoret uppfyller Codans önskemål om en arbetsmiljö med fokus på möjligheter till samarbete mellan avdelningarna, genom att byggnadens inre har planerats kring ett stort, glastäckt atrium med förskjutna balkonger och öppna trappor.
 Nytt huvudkontor åt försäkringsbolaget Codan . C.F. Møller
Fakta

Uppdragsgivare

Steen & Strøm Danmark A/S

Adress

København, Denmark

Omfattning

25 000 m²

År

2013

Tävling

1:a pris i dialog-tävling. 2013

Byggherrerådgivning

Orbicon

Entreprenör

Hoffmann/NCC

Ingenjör

Niras, Orbicon

Arkitekt

C.F. Møller Architects

Landskap

C.F. Møller Architects

Pris
Pris
  • 1:a pris i dialog-tävling. 2013

Balkongernas varierade utformning skapar visuell kontakt mellan våningarna, medan de sammanhängande trapporna och utrymmena kring atriet ger förutsättningar för informella möten och sammanför medarbetare från olika våningar på ett naturligt vis. I byggnadens sidoflygel finns öppna kontorslandskap där den enskilde medarbetarens behov av lugn och yrkesmässiga kontakter kan uppfyllas genom diskret avskärmade skrivbordsgrupper.

Längst ned i atriet ligger ett callcenter som en förlängning av övriga gemensamma funktioner, till exempel foajé, matsal och kaféområde. Callcentrets centrala placering följer Codans tankar om att framhäva kontakten med kunderna och låta energin från centret stiga uppåt i byggnaden. Därmed främjar atriet dynamiken och det yrkesmässiga samspelet i hela byggnaden.

Det nya huvudkontoret ligger i en modern, urban miljö med optimal tillgång till den omgivande infrastrukturen. Med endast 200 m till tunnelbana och tågstation och direkt åtkomst till motorvägen finns snabba förbindelser till Köpenhamns centrum, flygplatsen och Malmö.

 

Codan homepage  

Läs mera

Fler projekt | Kontor & Kommersiellt

Gå till Projekt

Contact

Feel free to contact us for more information or business inquiries.