MIND Museum - Danmarks Psykiatriske Museum. C.F. Møller. Photo: C.F. Møller Architects

MIND Museum - Danmarks Psykiatriske Museum

Museet MIND är en tidigare psykiatrisk patientbyggnad som har omvandlats till ett modernt museum. Det bevarar platsens historia och skapar samtidigt nya flexibla ramar för att förmedla psykiatrins utveckling i Danmark.
 MIND Museum - Danmarks Psykiatriske Museum. C.F. Møller. Photo: C.F. Møller Architects
Fakta

Uppdragsgivare

Partnerselskabet MIND Danmarks Psykiatriske Museum

Adress

Middelfart, Denmark

Omfattning

1 500 m²

År

2024-2026

Tävling

1:a pris i arkitekttävling. 2024

Byggherrerådgivning

Dan Ljungar arkitekt MAA

Ingenjör

Søren Jensen Engineers

Arkitekt

C.F. Møller Architects

Andra samarbetspartners

Kumulus Agency

Pris
Pris
  • 1:a pris i arkitekttävling. 2024

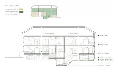
Uppgiften var att omvandla en av de ursprungliga sjukhusbyggnaderna från 1888 i Teglgårdsparken i Middelfart till ett museum för dansk psykiatrihistoria. Byggnaden har behållits i sin ursprungliga form för att inte förändra uttrycket i Teglgårdsparken som helhet. Invändigt bygger projektets grundidé på att bevara byggnadens klassiska karaktär och tydliga planstruktur, iscensätta historien genom färg- och materialval, samtidigt som nya element tillförs för att skapa ett samtida inre uttryck och optimera funktionerna för museibruk.

Projektet balanserar respekten för den ursprungliga arkitekturen med en strategisk prioritering av resurserna. Budgeten har använts målmedvetet på ett fåtal viktiga grepp med stor effekt: en ny huvudtrappa, nya kopplingar mellan rummen, en intern ”MINDwalk”-trappa från bottenvåning till källare samt ett café med precisa och enkla detaljer. Tillsammans skapar dessa en tydlig upplevelsehierarki och ger plats för både autenticitet och modern flexibilitet.

Dåtid och framtid

Bottenvåningen har återställts till sjukhusets ursprungliga atmosfär med referenser till de historiska färgerna och rummens kvaliteter, medan övervåningen har utformats som ett modernt, vitt och flexibelt utställningsområde för olika former av media. Resultatet är två olika men sammanhängande besöksupplevelser, från platsens ursprungliga funktion till dagens reflektioner kring psykiatri och mental hälsa. Exteriört har taket bytts ut och fönstren renoverats.

Materialvalen understryker det enkla och robusta uttrycket: mörk linoleum som associerar till de historiska fernissade trägolven samt nya portaler (väggöppningar), trappor och inredning i oljad ek som tillför värme och taktilitet. Utomhus har en ny skulpturträdgård tillförts, vilket utvidgar museiupplevelsen till gården och bjuder in besökarna att stanna längre och förlänga upplevelsen.

På så sätt har ett museum skapats som aktiverar den historiska byggnaden och samtidigt pekar framåt mot framtida utvidgningar, inklusive MINDwalk i de underjordiska tunnlarna. Museet stärker både kulturarvet och stadslivet i Middelfart och ger publiken en helhetsupplevelse, både arkitektonisk och mänsklig.

Läs mera
Gå till Projekt

Contact

Feel free to contact us for more information or business inquiries.